Civil Concrete - 3/3
close •
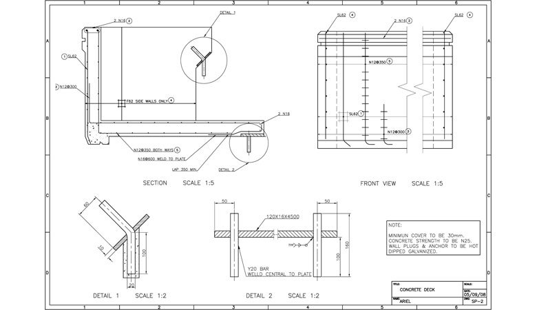
Concrete Deck