Air Conditioning - 3/4
close •
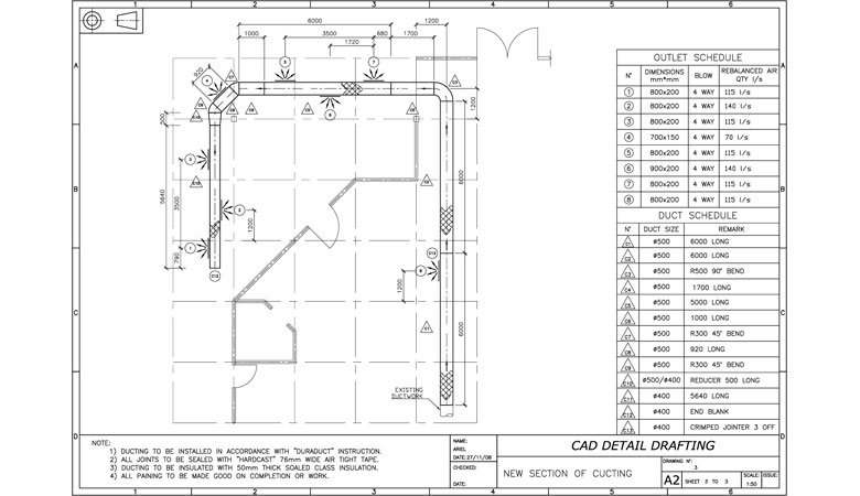
New Ducting Section